Conoces el sistema iCOR by Deceuninck
Presentamos la nueva ventana de PVC ELEGANT, el nuevo perfil de Deceuninck que responde a las máximas exigencias en diseño, eficiencia y compromiso con el medioambiente.
Tal como presenta Deceuninck, líder mundial en carpinterías de PVC, la nueva ventana Elegant “Abre una nueva dimensión”
Los perfiles son más esbeltos y modernos, consiguiendo como resultado final un estilo único.
Un diseño elegante con ala de acristalamiento de tan sólo 9 mm.
Tecnología modular iCOR
iCOR es el corazón modular de Elegant.
Gracias a su capacidad para combinar diferentes perfiles, queda perfectamente integrado en el diseño, haciéndose visible cuando el marco y la hoja se unen.
El primer módulo de construcción universal para ventanas y puertas

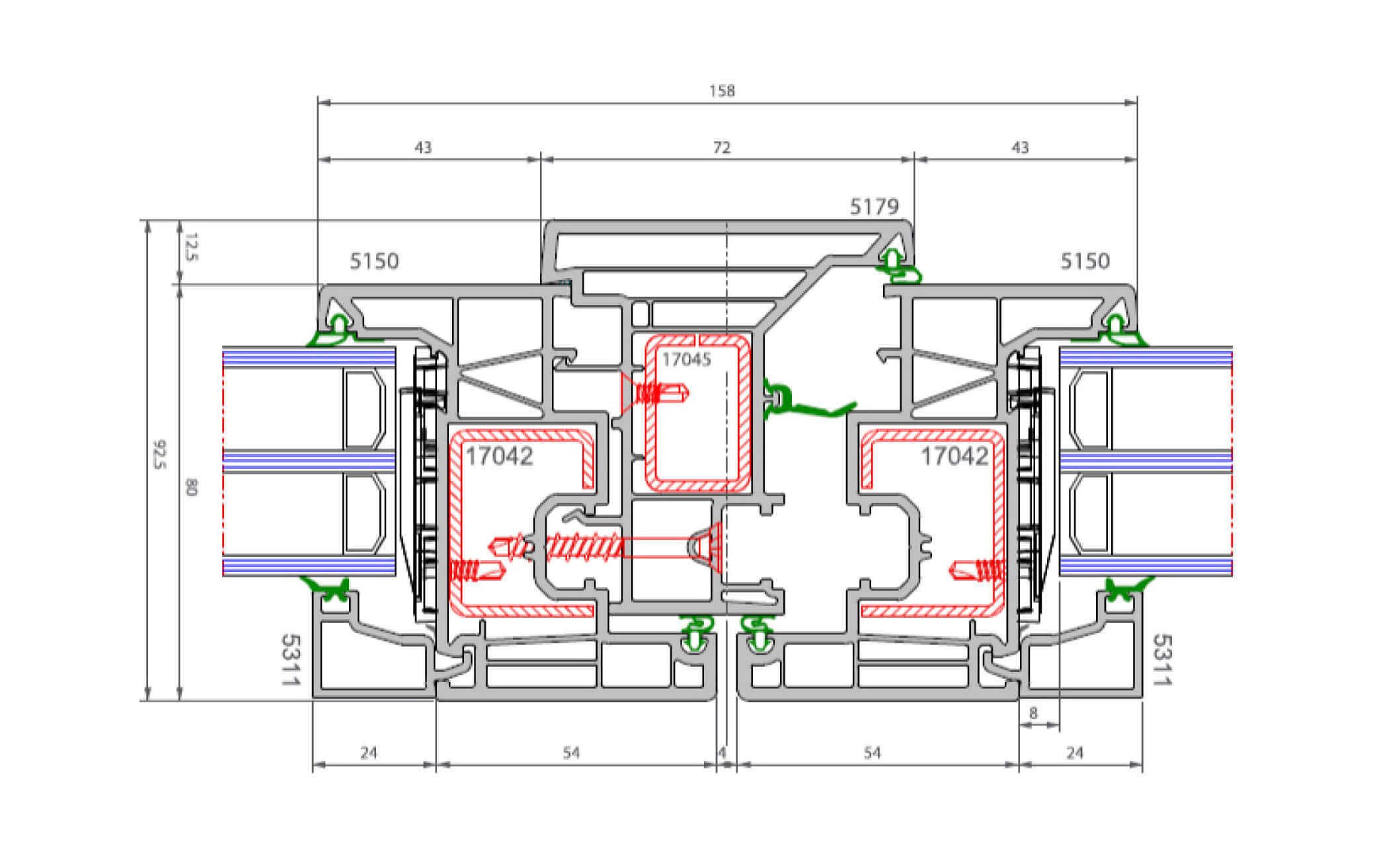
SECCIÓN HORIZONTAL

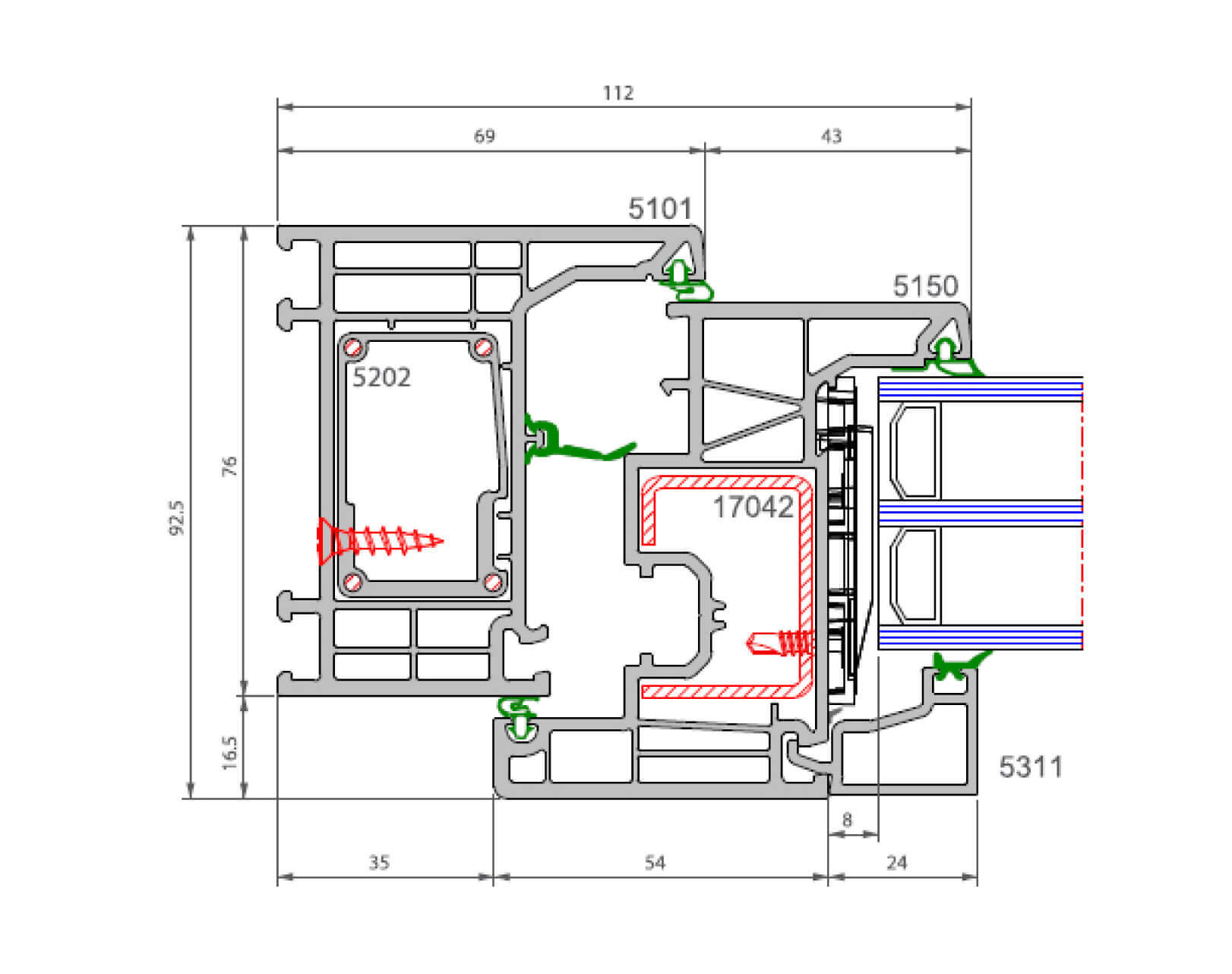
SECCIÓN VERTICAL

Descubre la nueva Dimensión en Ventanas de PVC